Volver

Edificio Brown

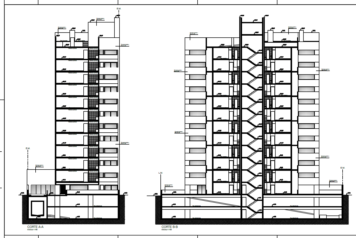
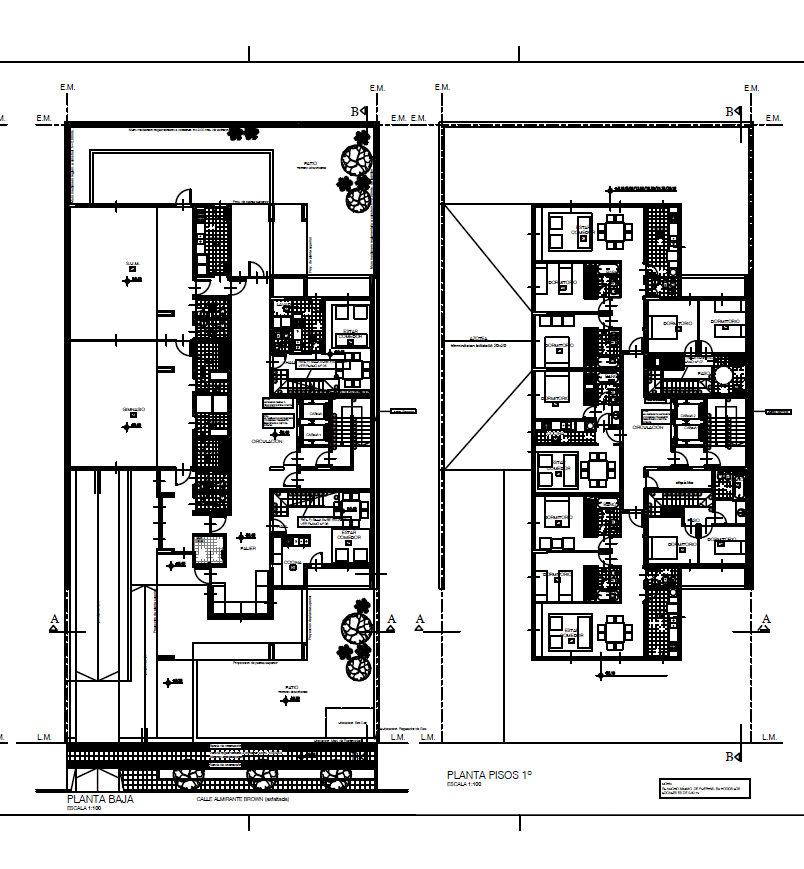
El Edificio Brown representa una evolución en la arquitectura residencial de Neuquén. Este proyecto se implanta sobre un terreno de 20 x 40 metros, priorizando la eficiencia energética, la luz natural y una oferta de amenities de primer nivel.

Ubicación
Neuquén Capital, Neuquén

Planos