Volver

Edificio Castelli

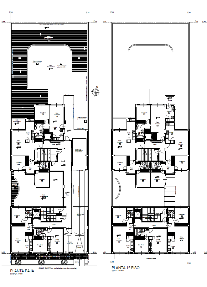
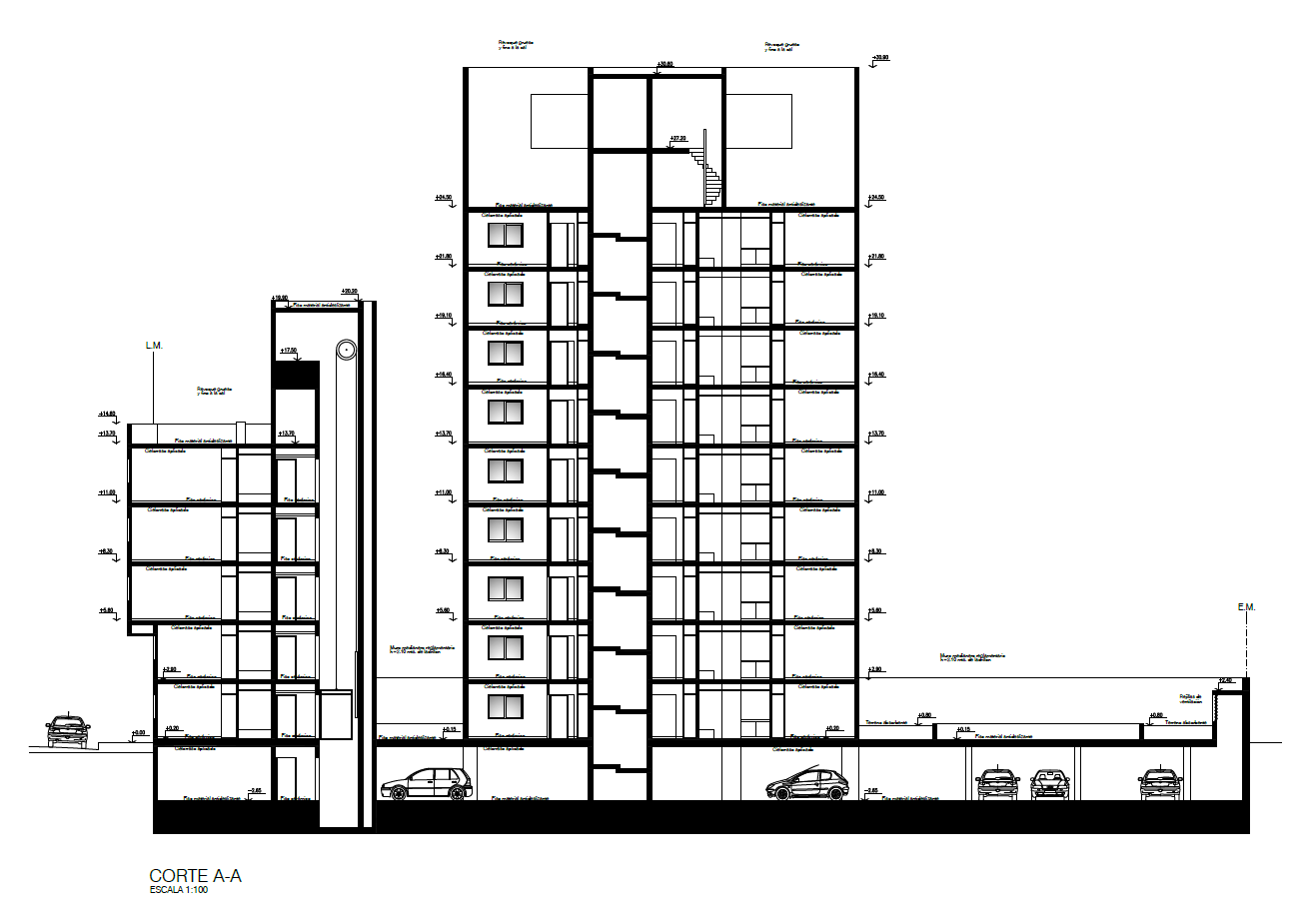
Desarrollo inmobiliario vertical en lote de 12,50 x 25,00 m con orientación Oeste, maximizando indicadores urbanísticos. Tres unidades funcionales independientes con cocheras y quincho en el fondo. PB (50 m²): 1 dormitorio con patio frontal; 1° piso (71 m²): 2 dormitorios con balcón al frente; 2° piso (58 m²): 1 dormitorio con gran patio-terraza privado y balcón. Terraza accesible común en nivel superior.

Ubicación
Neuquén Capital, Neuquén

Planos